Cercar Immoble
Estato



Eficiència Energètica i Sostenibilitat.

C - 1506  - Vallromanes

Fitxa Tècnica

Preu venda
790.000 €
Operació
Venta
Estat
Disponible
Terrassa/Parcel.la
752 m²
Àrea cons.
285 m²
Tipus
Casa
Localitat
Vallromanes
Habitacions
5
Banys
3
Places de garatge
2
Paviment
CERAMICA
Eficiència energètica

Descripció

Refugi de Confort i Elegància al cor de Vallromanes

Al cor de Vallromanes, un pintoresc municipi situat a la província de Barcelona, ​​hi ha una espectacular casa aïllada que redefineix el que significa viure en un refugi de confort i elegància. Amb una superfície total de 283 m², aquesta propietat d'obra nova ha estat dissenyada meticulosament per oferir espais amplis i garantir una qualitat de vida excepcional per a tota la família.

Disseny i Distribució:

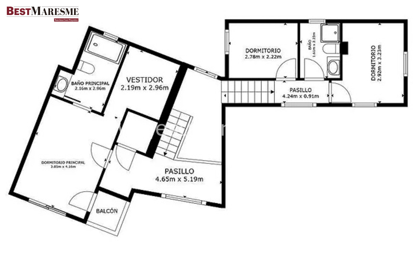
En ingressar a casa, la primera impressió és d'amplitud i lluminositat. La propietat compta amb una habitació doble tipus suite que inclou un vestidor annex, cosa que proporciona un espai privat i personal per als propietaris. Aquesta habitació principal està dissenyada per oferir un refugi íntim al final del dia. A més, la casa disposa de dues habitacions simples i una doble, que es poden adaptar fàcilment a diferents necessitats, ja sigui com a dormitoris, oficines o sales de jocs per als més petits. Aquesta versatilitat en el disseny permet que els propietaris personalitzin els espais d'acord amb les vostres preferències i necessitats familiars.

Per a més comoditat, totes les plantes de la casa estan connectades per un ascensor, cosa que facilita l'accés i la mobilitat a la llar, especialment en situacions de càrrega pesada o per a persones amb mobilitat reduïda. Aquest detall fa que la vida quotidiana sigui considerablement més còmoda i accessible per a tots els membres de la família.

El cor de la casa és sens dubte, el saló espaiós i lluminós, el disseny obert afavoreix la interacció familiar i social, convertint-lo en el lloc ideal per celebrar reunions amb amics o gaudir de moments en família. Les grans finestres permeten l´entrada de llum natural, creant un ambient càlid i acollidor. La seva amplitud també ofereix la possibilitat d'adaptar l'espai a diferents estils de decoració, fent que cada reunió sigui única. Un dels atractius més grans d'aquesta propietat rau en el seu impressionant exterior. Un bonic jardí envolta la casa, proporcionant un espai verd on la natura i la tranquil·litat convergeixen. Al centre d´aquest jardí hi ha una magnífica piscina, el lloc perfecte per gaudir del sol durant els càlids dies d´estiu. Aquesta característica no només afegeix un component estètic valuós, sinó que també es tradueix en moments inoblidables en família i amb amics, fent d'aquest jardí un lloc d'esbarjo ideal.

Per garantir l'organització i l'ordre a la llar, la propietat inclou un garatge amb capacitat per a diversos vehicles i un traster, que proporciona un espai addicional per emmagatzemar tot allò que es necessiti sense comprometre l'estètica de la llar.

La cuina compta amb una superfície de 25 metres quadrats i està equipada amb un rebost annex i una zona de bugaderia. Aquest disseny pràctic i funcional permet preparar menjars relaxadament mentre es manté la llar ordenada. A més, la cuina és perfecta per a aquells amants de la gastronomia, permetent organitzar sopars i celebracions amb comoditat.

Pel que fa a la comoditat i privadesa dels membres de la família, la casa està equipada amb dos banys complets i un lavabo addicional. Aquesta distribució assegura que tots els residents tinguin accés a instal·lacions adequades, cosa que augmenta la funcionalitat i la comoditat de la casa.

Eficiència Energètica i Sostenibilitat:

Un aspecte destacat daquesta casa és la seva alta eficiència energètica. Equipat amb sistemes de plaques solars i aerotèrmia, aquesta llar no només es preocupa pel benestar dels seus ocupants, sinó que també contribueix a la cura del medi ambient. Aquestes característiques permeten reduir el consum energètic i, per tant, els costos associats, posicionant la propietat com una opció atractiva i sostenible al mercat actual.

Ubicació Privilegiada:

Finalment, la ubicació de Vallromanes és un altre dels grans atractius. Aquest entorn tranquil i natural és ideal per als que busquen escapar de l'enrenou de les grans ciutats sense renunciar a les comoditats que ofereixen. A les proximitats, els residents podran trobar mercats locals i supermercats, així com una selecció de col·legis de prestigi, garantint una educació de qualitat per als més joves. A més, diverses opcions de lleure i restauració estan disponibles, enriquint lexperiència de viure en aquest encantador municipi. La proximitat a les vies d'accés principals permet mantenir connexió amb Barcelona, ​​facilitant el desplaçament cap al centre urbà. D'aquesta manera, aquesta casa representa no només una llar, sinó també un estil de vida que combina la pau i la tranquil·litat de l'entorn natural amb la vibrant vida de la ciutat.


Detalls de la casa

  • Piscina (CLORO)
  • Garatge (2)
  • Vistas montanya
  • Vista panoràmica
  • Porta blind.
  • Clavegueram
  • Vestidor
  • Rebost
  • Zona neteja
  • Ascensor
  • Aire condicionat

AGENT

  • (34) 608 010 051
  • (34) 93 759 46 92
  • bestmaresme

localizació


VOLS VENDRE O LLOGAR LA TEVA CASA?

T´ASSESSOREM!


Últimes notícies

Noves cases a la venda al Maresme
Consulta´ns abans de comprar casa teva al Maresme.
Posem a la teva disposició una selecció de cases de luxe al Maresme. Les millors cases de la costa de Barcelona.
Cases baixades de preu al Maresme
La millor oferta de cases al Maresme.
Cases amb baixades de preu. Consulta les cases que tenen un preu millorat.
Notícies del Maresme
El Maresme, una de les comarques més palpitants de Catalunya
El Maresme, una comarca banyada pel mar a tota la seva extensió amb una gastronomia elogiada internacionalment.
Viure al Maresme
Fires, festes, gastronomia, platges, locals per a celebracions.
El Maresme, una comarca que compagina els pobles i les ciutats amb un agradable paisatge forestal i agrícola en harmonia amb el mar. Una comarca jalonada per ports esportius amb un clima agradable tot l´any.
Veure més al nostre blog

Per qué triar BestMaresme?

Rapidesa Cases de luxe, xalets, viles o apartaments: estem preparats per oferir una solució ràpida.
Equip Un equip multilingüe de professionals amb una alta especialització en cases de luxe a la costa de Barcelona.
Dedicació Treballem dia a dia per oferir solucions immobiliàries a les seves demandes
Preu Pisos, cases i terrenys de luxe al millor preu de mercat.