Cercar Immoble
Estato



On el disseny i la natura es troben

C - 1515  - Llavaneres

Fitxa Tècnica

Preu venda
2.790.000 €
Operació
Venta
Estat
Disponible
Terrassa/Parcel.la
1916 m²
Àrea cons.
501 m²
Tipus
Casa
Localitat
Llavaneres
Habitacions
5
Banys
5
Places de garatge
4
Paviment
GRES
Eficiència energètica

Descripció

Sis viles úniques en un entorn natural i privilegiat

BestMaresme presenta un projecte residencial veritablement excepcional a Sant Andreu de Llavaneres, una exclusiva promoció d'obra nova composta per sis viles de luxe situades a una comunitat privada, concebuda per als que busquen una vida tranquil·la i sofisticada davant del Mediterrani.

A només cinc minuts del centre de Llavaneres i a mitja hora de Barcelona, aquest enclavament ofereix l'equilibri perfecte entre natura, privadesa i estil de vida costaner. L´entorn combina serenitat i confort, amb una excel·lent connexió als principals serveis, prestigiosos camps de golf, el port esportiu Port Balís i diversos clubs de tennis i pàdel. La zona és reconeguda a més per la seva gastronomia i el seu clima temperat, amb sol pràcticament tot l'any.

El complex s'assenta sobre una extensa parcel·la de 19.810 m2, acuradament planificada per crear un ambient exclusiu i sostenible. Dins aquest espai hi ha més de 10.000 m² de jardins comunitaris, amb vegetació mediterrània, senders arbrats i racons de descans. A més, els residents podran gaudir d´una zona d´aparcament per a convidats, una àrea de green amb forats per practicar golf, un hort ecològic compartit per cultivar productes frescos, i una petita caseta multifuncional pensada per a reunions o esdeveniments veïnals.

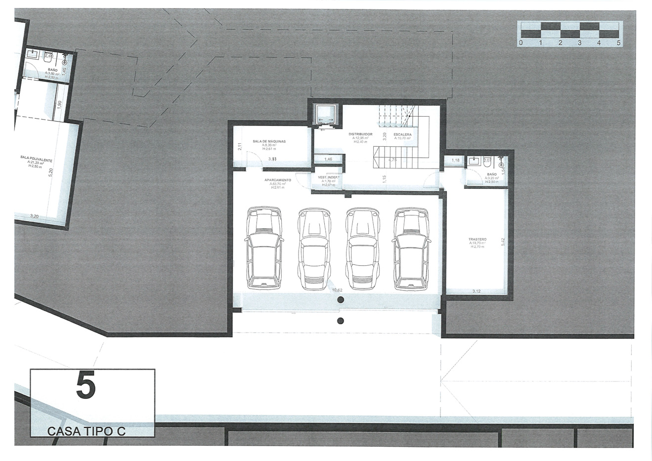
Un accés subterrani privat connecta cada vila amb el garatge, amb capacitat per a quatre vehicles, garantint la màxima discreció i comoditat.

Cada residència compta amb uns 500 m² construïts sobre àmplies parcel·les privades entre 1.700 i 3.000 m². Les viles destaquen pel seu disseny contemporani i elegant, amb materials de primera qualitat i una acurada integració al paisatge. Els espais interiors s'obren a l'exterior mitjançant grans finestrals, connectant el saló i el menjador de planta oberta amb àmplies terrasses, jardins i piscines infinites privades amb vistes al mar.

La distribució interior inclou cinc dormitoris en suite, un d´ells una impressionant suite principal amb vestidor i bany privat, a més d´una sala polivalent, una cuina de disseny amb zona d´esmorzar i un rebedor de generoses dimensions.

Cada detall ha estat concebut per oferir una experiència de vida exclusiva, combinant disseny, privadesa i connexió amb la natura en un dels enclavaments més cotitzats del Maresme.


Detalls de la casa

  • Piscina (SALINA)
  • Garatge (4)
  • Vistas al mar
  • Vistas montanya
  • Vista panoràmica
  • Vestidor
  • Cuina equipada
  • Rebost
  • Zona neteja
  • Ascensor
  • Llar de foc
  • Aire condicionat

AGENT

  • (34) 608 010 051
  • (34) 93 759 46 92
  • bestmaresme

localizació

Viles, pisos y cases de luxe a Llavaneres

Veure tots

VOLS VENDRE O LLOGAR LA TEVA CASA?

T´ASSESSOREM!


Últimes notícies

Noves cases a la venda al Maresme
Consulta´ns abans de comprar casa teva al Maresme.
Posem a la teva disposició una selecció de cases de luxe al Maresme. Les millors cases de la costa de Barcelona.
Cases baixades de preu al Maresme
La millor oferta de cases al Maresme.
Cases amb baixades de preu. Consulta les cases que tenen un preu millorat.
Notícies del Maresme
El Maresme, una de les comarques més palpitants de Catalunya
El Maresme, una comarca banyada pel mar a tota la seva extensió amb una gastronomia elogiada internacionalment.
Viure al Maresme
Fires, festes, gastronomia, platges, locals per a celebracions.
El Maresme, una comarca que compagina els pobles i les ciutats amb un agradable paisatge forestal i agrícola en harmonia amb el mar. Una comarca jalonada per ports esportius amb un clima agradable tot l´any.
Veure més al nostre blog

Per qué triar BestMaresme?

Rapidesa Cases de luxe, xalets, viles o apartaments: estem preparats per oferir una solució ràpida.
Equip Un equip multilingüe de professionals amb una alta especialització en cases de luxe a la costa de Barcelona.
Dedicació Treballem dia a dia per oferir solucions immobiliàries a les seves demandes
Preu Pisos, cases i terrenys de luxe al millor preu de mercat.